Бизнес-центр «Олимпик Холл»

  • Москва, Олимпийский пр., 16

Мы предлагаем

Аренда и продажа офисных помещений в 6-этажном Бизнес-центре «Олимпик Холл» по адресу Москва, Олимпийский пр., 16 от собственника без комиссии

Звоните: +7 (495) 822-30-70

  • Метро

    Достоевская, Проспект Мира

  • Район

    Мещанский

  • Округ

    Центральный (ЦАО)

  • Деловая зона

    Между Садовым и ТТК

Актуальная информация обо всех вакантных площадях предоставляется по запросу

Характеристики

  • Офисная площадь, кв.м

    11 000

  • Арендопригодная площадь, кв.м

    15 856.6

  • Общая площадь, кв.м

    22 889.4

  • Статус

    Построен

  • Код налоговой

    2

  • Год постройки

    2012

  • Этажность

    6

  • Кондиционирование

    Центральное

  • Вентиляция

    Приточно-вытяжная

  • Инфраструктура

    Кафе, Минимаркет

  • Высота потолков

    3.2-4.6, 7 м

  • Лифт

    есть

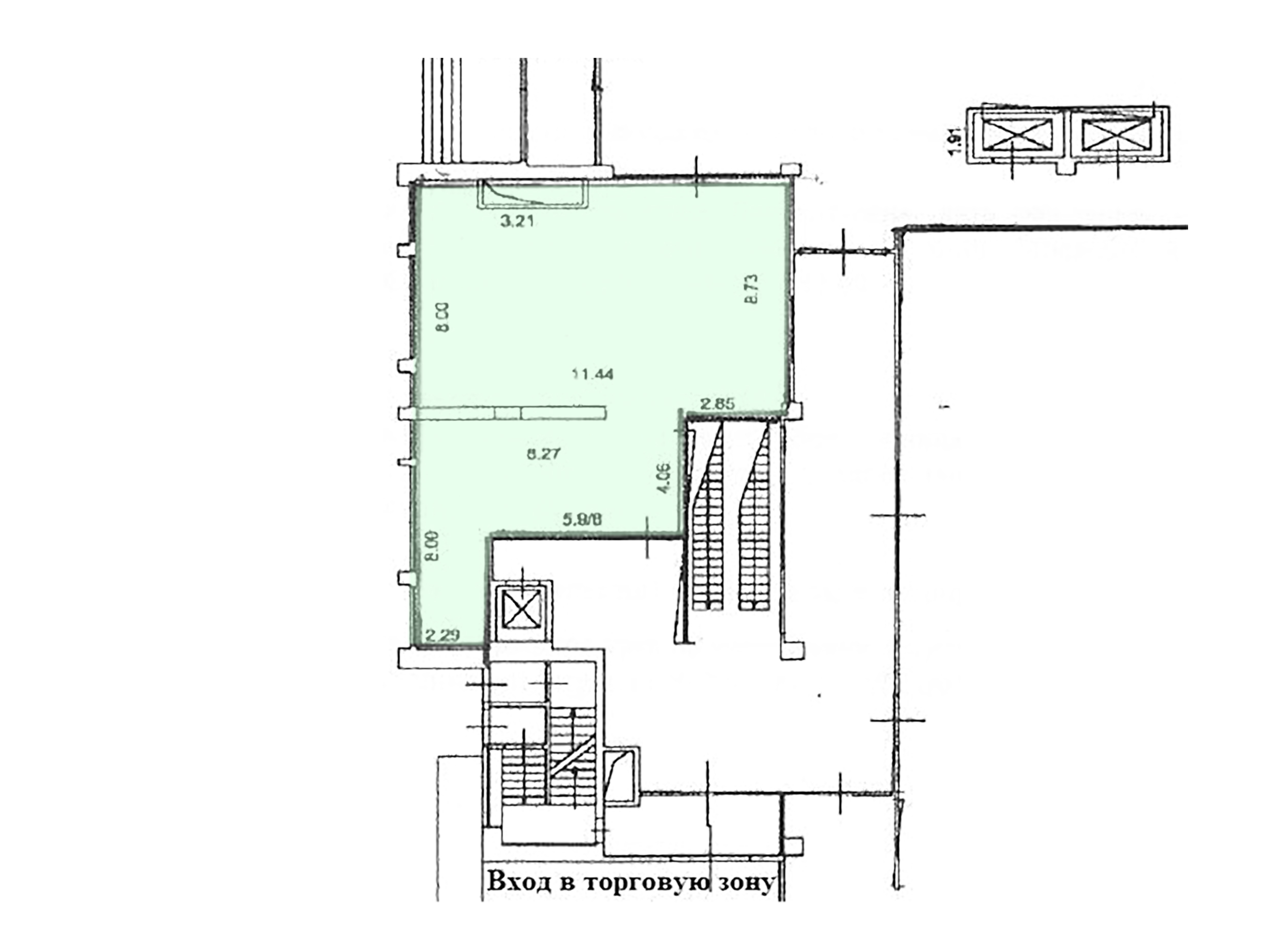
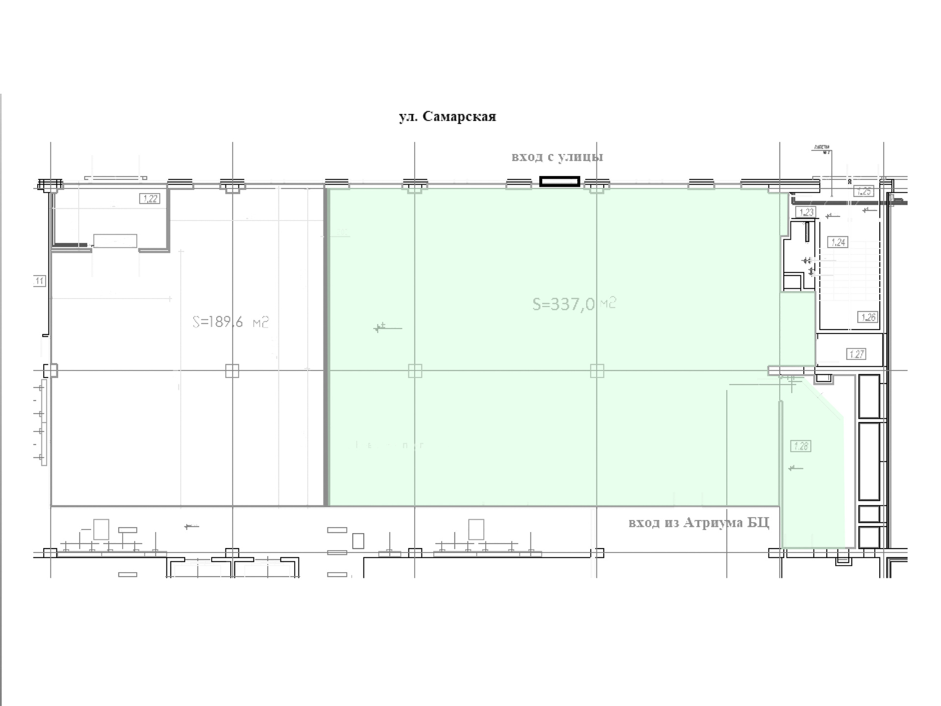
  • Планировка

    Open space, Кабинеты

  • Многоуровневый паркинг

    Есть

  • Паркинг подземный, м/мест

    152

  • Паркинг наземный открытый, м/мест

    50

  • Провайдеры

    Avantel

  • Шаг колонн

    8.4×8.4

Фотогалерея

Видеообзор

Об объекте

Аренда офиса в бизнес-центре «Олимпик Холл» от собственника и без комиссии.

Бизнес-центр класса А «Олимпик Холл» располагается на Олимпийском проспекте, в престижном Мещанском районе ЦАО. Отличная транспортная доступность: 10-15 минут пешком от ст. м «Проспект Мира» и «Достоевская». Близость к Рижскому вокзалу и ж/д станции, ключевым автомагистралям: Олимпийскому проспекту, Сущевскому Валу, ТТК. В шаговой доступности в изобилии представлены рестораны, магазины, салоны красоты, а также аптека и отделение банка.

Здание построено в 2012 году и обладает отличными инженерно-техническими характеристиками: приточно-вытяжная вентиляция, центральное кондиционирование, противопожарная система, климат-контроль, скоростные лифты, круглосуточное видеонаблюдение. Для удобства резидентов действуют подземный паркинг и гостевая парковка. Центральная рецепция на первом этаже.

К аренде предлагаются офисные блоки открытой и смешанной планировок c качественным ремонтом и в формате shell&core. OPEX и коммунальные расходы включены в арендную ставку. Возможность предоставления арендных каникул. Договор аренды заключается напрямую с владельцем. Без комиссии и любых переплат. Свяжитесь с нами по телефону или оставьте заявку на сайте, и мы проведем просмотр в удобную для вас дату, а также предоставим детали по объекту и доступным для аренды помещениям.

Адрес

Москва, Олимпийский пр., 16